
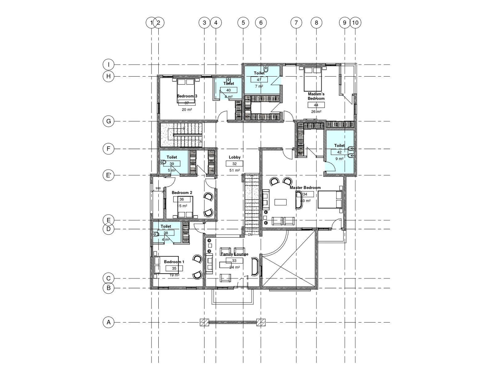
This 6 Bedroom Duplex with 2 Guest Bedrooms is an elegant architectural masterpiece crafted for large families or clients who desire a home that blends luxury with practicality. The design features two floors of thoughtfully planned spaces, ensuring privacy for family members while maintaining welcoming guest areas.
The ground floor accommodates a grand living room, guest bedrooms, a modern kitchen with a store and laundry, and direct access to a serene outdoor sit-out. The upper floor is fully residential—featuring ensuite bedrooms, a family lounge, balconies, and a master suite that offers true comfort and sophistication.
Perfectly suited for homeowners, real estate developers, or investors seeking an upscale property layout, this design can be constructed on a standard plot with room for parking, landscaping, and outdoor recreation areas.
Key Features:
-
✅ 6 Spacious Bedrooms + 2 Guest Bedrooms — all ensuite for maximum comfort.
-
✅ Double Living Areas — a formal lounge and an upper family lounge for relaxation.
-
✅ Grand Entrance Lobby with impressive architectural façade.
-
✅ Modern Kitchen Layout with store, pantry, and laundry section.
-
✅ Ample Natural Lighting through strategically placed large windows.
-
✅ Attached Balconies to master and upper rooms.
-
✅ Visitor-Friendly Layout separating public and private zones.
-
✅ Dedicated Parking & Outdoor Space for garden or recreation.
-
✅ Energy-Efficient Design adaptable for solar installation.
-
✅ Customizable Plan — can be adjusted to fit smaller or larger plots.
Technical Specifications
| Specification | Details |
|---|
| Total Land Area | Minimum of 900m² (Approx. 100ft × 100ft) |
| Building Coverage Area | Approximately 380m² |
| Number of Floors | 2 (Ground + First Floor) |
| Bedrooms | 6 Main Bedrooms + 2 Guest Bedrooms |
| Bathrooms | 8 (All Ensuite + Visitors Toilet) |
| Living Areas | 2 Spacious Living Rooms (Main & Family Lounge) |
| Kitchen | Fully Equipped Modern Kitchen with Store & Laundry |
| Dining Area | Large Dining Adjacent to Kitchen |
| Garage/Parking | Space for 3–4 Cars |
| Roof Type | Contemporary Hip Roof / Flat Roof (Optional) |
| External Dimensions | Approx. 24m (Frontage) × 18m (Depth) |
| Ceiling Height | 3.2m (Ground Floor) / 3.0m (First Floor) |
| Balcony Areas | Attached to the Master and Family Lounge |
| Structural Type | Reinforced Concrete Frame Structure |
Why Choose This Plan:
-
Professionally designed for high rental or resale value.
-
Combines affordability, durability, and aesthetic appeal.
-
Ready-to-build architectural plan — downloadable immediately after purchase.
-
Option for construction supervision and modification by our in-house experts at additional cost.













Reviews
There are no reviews yet.