
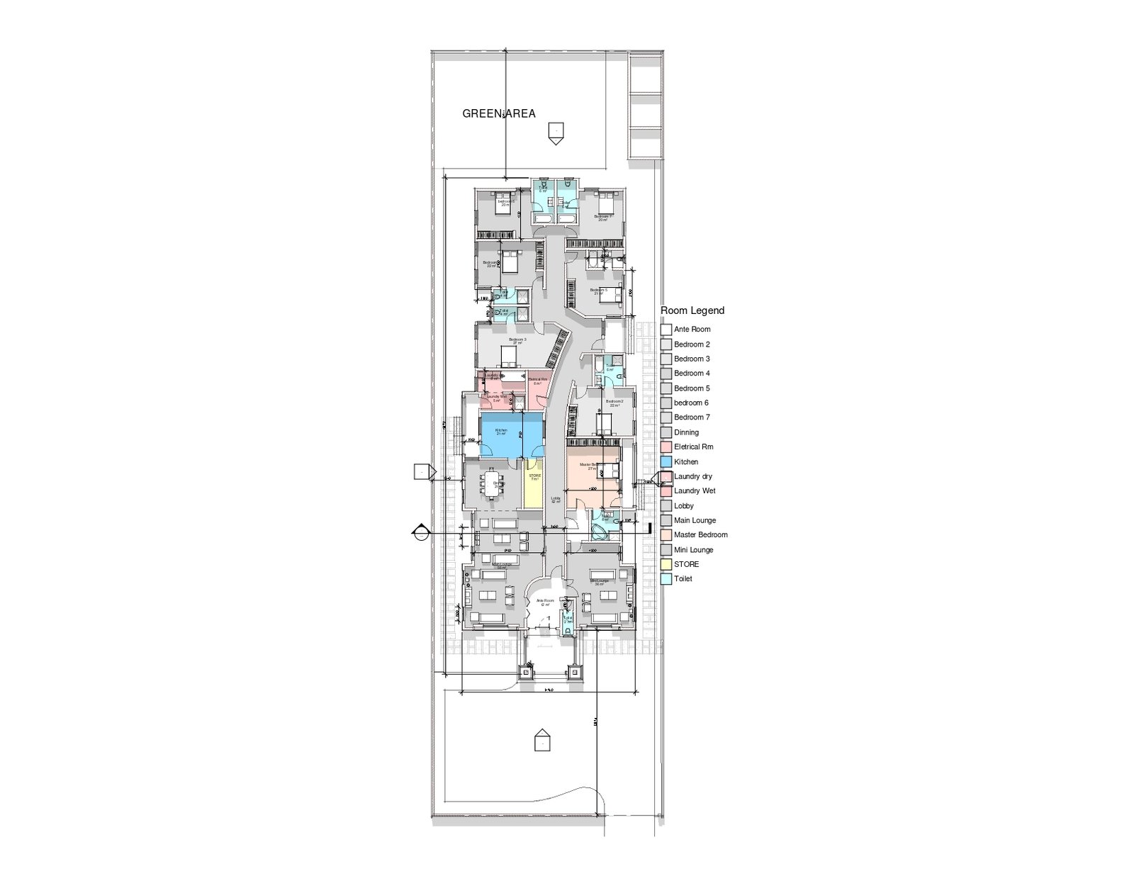
The 7 Bedroom Bungalow on a Narrow Plot is a masterpiece of efficient design and architectural excellence. Crafted specifically for limited-width plots, this plan maximizes available space through intelligent room distribution and a well-structured layout.
Every part of this home has been carefully planned — from the inviting entrance foyer to the expansive living and dining areas, ensuite bedrooms, and a well-positioned kitchen that ensures privacy and easy access.
The design features modern exterior finishing, large windows for natural lighting, and a functional flow that enhances everyday living. Whether you’re building for your family or a client, this bungalow offers both comfort and prestige on a modest plot size.
Ideal for urban developments or compact residential estates, this plan provides all the benefits of a full-scale bungalow while maintaining an affordable construction cost.
Key Features:
-
✅ Compact yet Spacious Design — Optimized layout for narrow plots without sacrificing comfort.
-
✅ All Ensuite Bedrooms — Each bedroom includes a private bathroom and wardrobe space.
-
✅ Open-Plan Living — Seamless connection between the living, dining, and kitchen areas.
-
✅ Natural Ventilation — Large windows and cross-ventilation for a bright, airy interior.
-
✅ Master Suite Comfort — Features a walk-in closet, private sitting area, and luxurious bathroom.
-
✅ Dedicated Laundry & Storage — Smart utility areas for daily convenience.
-
✅ Stylish Facade — Modern architectural finishing that enhances street appeal.
-
✅ Energy-Efficient Layout — Maximized use of natural light to reduce energy consumption.
-
✅ Customizable Plan — Can be modified to fit your survey dimensions or preferences at additional cost.
Technical Specifications
| Specification | Details |
|---|---|
| Building Type | Residential Bungalow |
| Total Bedrooms | 7 (All Ensuite) |
| Number of Floors | 1 Floor |
| Plot Size Requirement | Minimum 50 ft × 100 ft (15m × 30m) |
| Total Building Area | Approx. 380 – 420 m² |
| Living Room | Spacious central living area with natural ventilation |
| Dining Area | Connected open-plan dining near kitchen |
| Kitchen | Fully fitted kitchen with store/pantry |
| Master Bedroom | Large ensuite with walk-in closet and private lounge |
| Other Bedrooms | 6 ensuite rooms with wardrobe spaces |
| Guest Toilet | 1 (near the living area) |
| Garage/Carport | Space for 2 cars |
| Ceiling Height | 3.0m standard floor-to-ceiling |
| Roof Type | Low-slope hipped roof design |
| External Finish | Contemporary plaster and paint, stone cladding accents |
Why Choose This Plan:
-
Professionally designed for high rental or resale value.
-
Combines affordability, durability, and aesthetic appeal.
-
Ready-to-build architectural plan — downloadable immediately after purchase.
-
Option for construction supervision and modification by our in-house experts at additional cost.














Reviews
There are no reviews yet.