
The Mixed-Use Commercial Development Plan offers a modern, multi-functional building concept designed to serve both commercial and residential needs within a single development.
Ideal for urban centers and growing towns, this design features flexible ground-floor spaces suitable for shops, offices, or showrooms — while the upper floors accommodate residential apartments that ensure steady rental income and occupancy.
The architecture focuses on maximizing land efficiency, aesthetic appeal, and sustainable design practices, making it perfect for developers who want to attract both business tenants and residents.
Whether you’re planning to build on a city lot or a suburban plot, this plan offers a smart, profitable, and functional structure tailored to modern African markets.
This plan includes detailed architectural drawings, floor layouts, elevations, sections, and 3D visualizations ready for implementation.
Key Features:
-
Dual Purpose Design: Combines retail and residential functions within one development for maximum return on investment.
-
Efficient Space Planning: Smart layout ensuring easy access for shoppers and privacy for residents.
-
Modern Aesthetic: Contemporary façade with glass panels and minimalist design elements.
-
Ample Parking: Strategically designed parking spaces to accommodate customers and tenants.
-
Energy-Efficient Layout: Natural lighting and ventilation across all floors.
-
Customizable Design: Option to adjust layout to specific land size or business needs.
-
Fully Detailed Drawings: Includes architectural, electrical, plumbing, and mechanical plans.
-
Ready for Construction: Approved standard plan format suitable for building approval in most Nigerian cities.
-
3D Visualization Included: Realistic 3D renders for better project understanding.
Technical Specifications
| Specification | Details |
|---|
| Total Land Area | 900 sqm (approx. 100 ft × 100 ft) |
| Number of Floors | 3 Floors (Ground + 2 Upper Levels) |
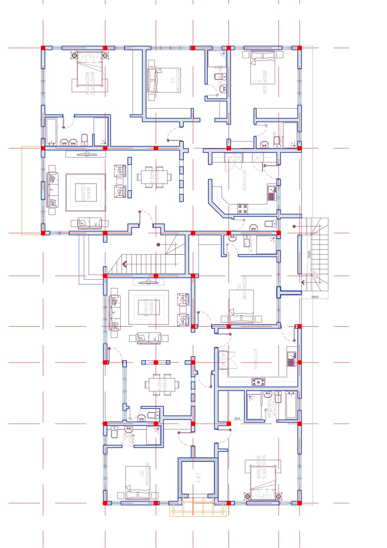
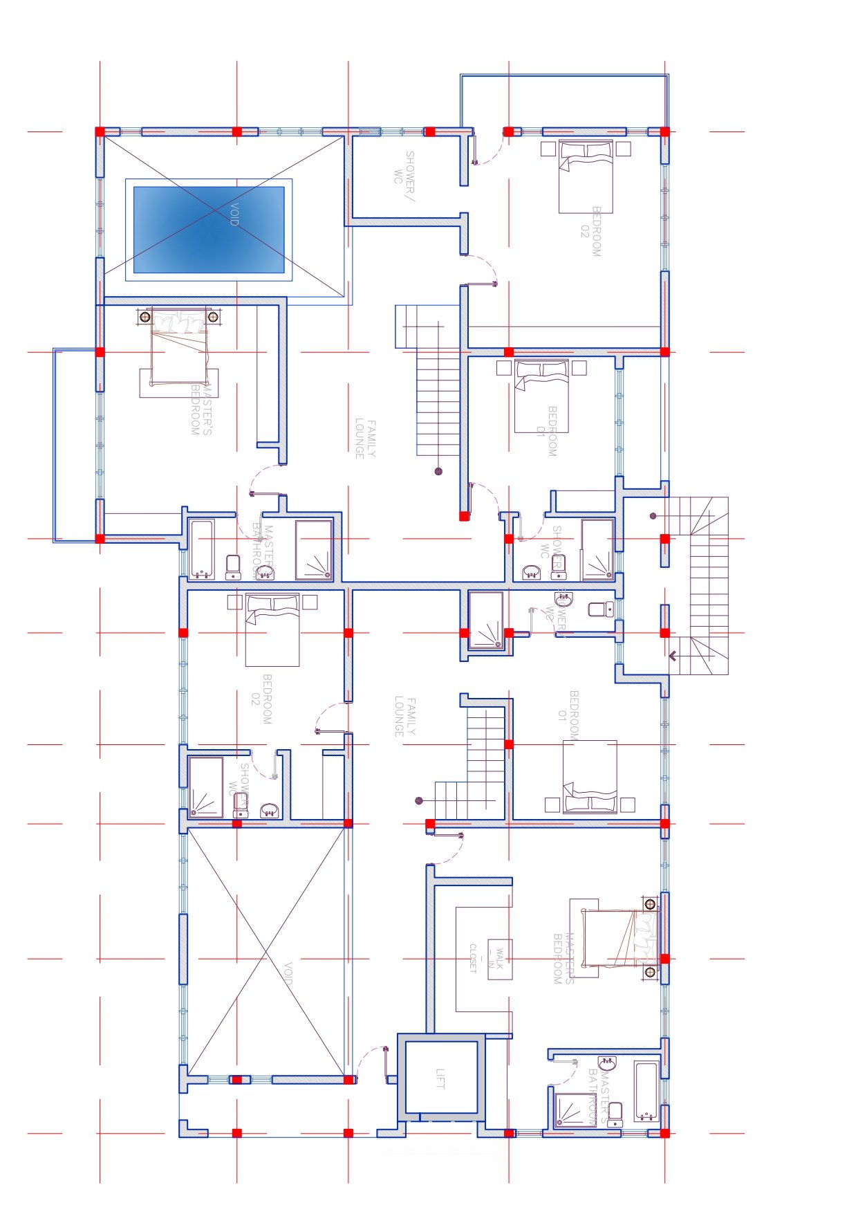
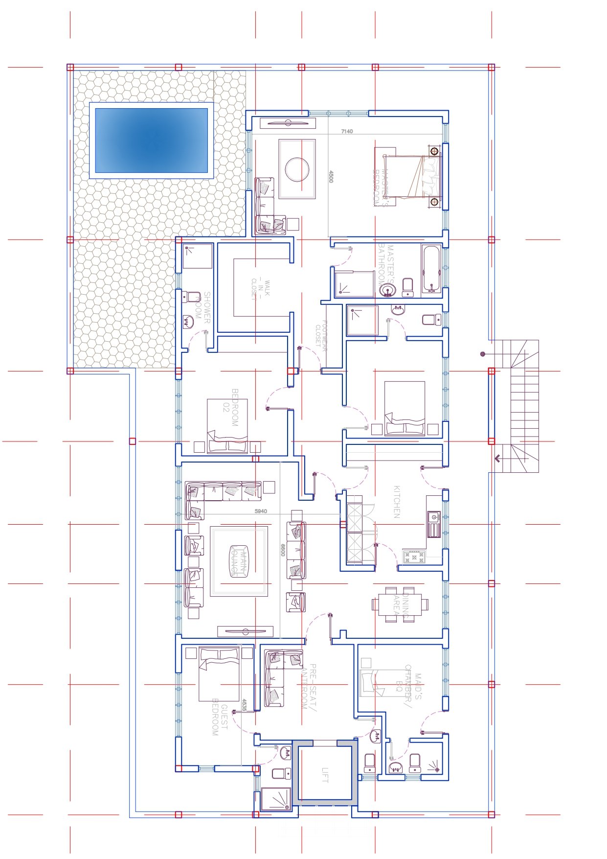
| Ground Floor | 6 Commercial Shops (25 sqm each), Central Corridor, Restroom Facilities |
| First Floor | 4 Two-Bedroom Apartments (average 85 sqm each), Balcony per unit |
| Second Floor | 2 Three-Bedroom Apartments (average 120 sqm each), Lounge and Terrace |
| Building Height | 11.5 meters |
| Parking Capacity | 8–10 vehicles |
| Staircase / Circulation | Dual staircase with central landing; provision for future elevator |
| Roof Type | Reinforced flat concrete roof (optional parapet wall) |
| Wall Material | Sandcrete block (225 mm external / 150 mm internal) |
| Finishes | Modern exterior cladding, aluminum glazing, and tiled interiors |
| Services | Electrical, plumbing, and mechanical drawings included |
| File Format | Full PDF drawings (AutoCAD source files available on request) |
Why Choose This Plan:
-
Professionally designed for high rental or resale value.
-
Combines affordability, durability, and aesthetic appeal.
-
Ready-to-build architectural plan — downloadable immediately after purchase.
-
Option for construction supervision and modification by our in-house experts at additional cost.

















Reviews
There are no reviews yet.