
The Shopping Mall Architectural Plan is a premium, fully developed design that combines aesthetic appeal, efficient space utilization, and modern structural standards. Perfect for real estate developers, investors, or business owners looking to establish a commercial hub, this plan provides a complete blueprint for a functional and profitable shopping center.
This design prioritizes shop visibility, accessibility, natural lighting, and customer flow, ensuring an optimal shopping experience. The plan is adaptable for both urban and semi-urban locations, with scalable options to match your specific land size and business needs.
Design Concept
The mall is designed with a contemporary architectural theme, featuring sleek glass façades, well-defined shop layouts, and wide corridors that enhance shopper comfort. It includes both ground and upper floor levels, ensuring maximum use of available land and an impressive external elevation that draws attention.
Key Features:
-
🛍️ Multiple Retail Units — Professionally laid out shop spaces suitable for boutiques, electronics, supermarkets, and restaurants.
-
🚘 Ample Parking Space — Designed with a well-planned car park that accommodates customers and staff.
-
🧱 Flexible Floor Plan — Each shop unit can be resized or merged based on tenant requirements.
-
🌞 Natural Lighting & Ventilation — Strategic window and atrium placements for energy efficiency.
-
🧑💼 Administrative Section — Includes mall management office, meeting room, and staff lounge.
-
🚻 Public Facilities — Dedicated restrooms for visitors on each floor.
-
🔌 Service Areas — Includes power room, generator space, storage, and waste disposal zones.
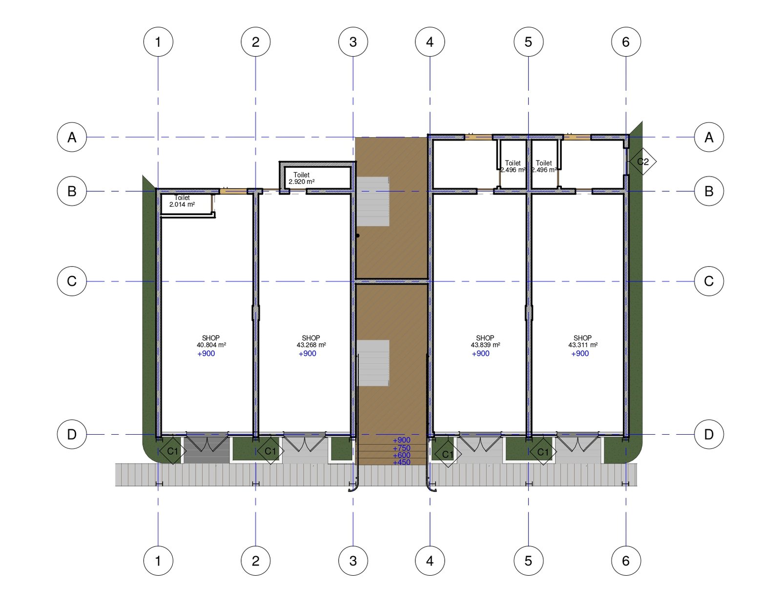
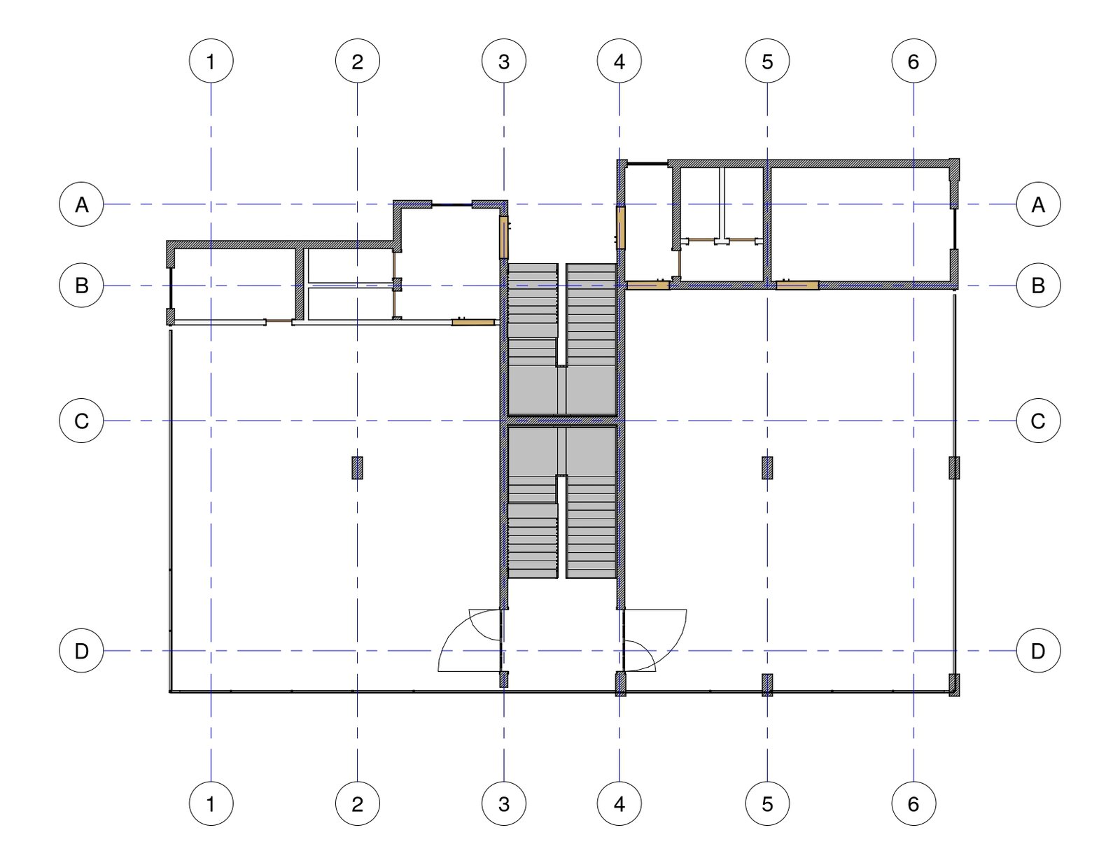
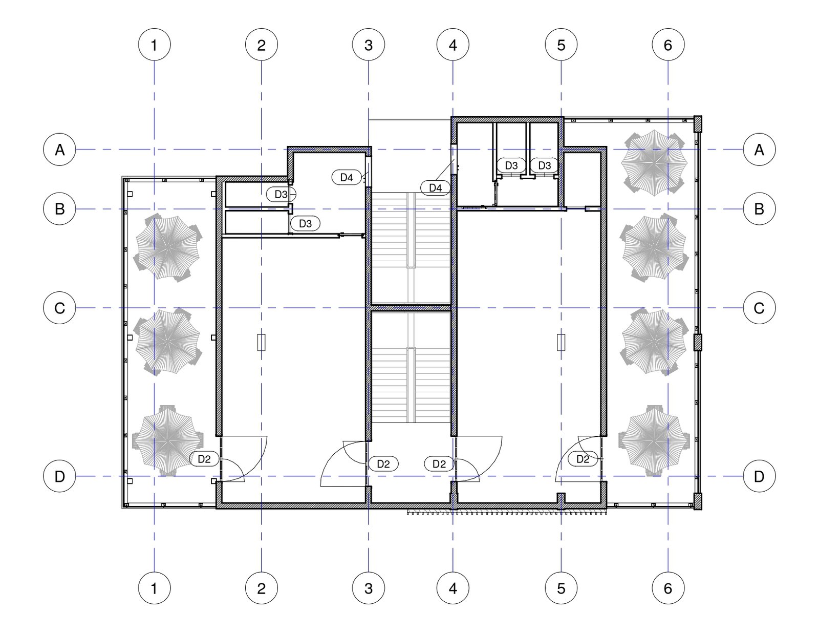
Technical Specifications
| Specification | Details |
|---|
| Total Land Area Required | 2,400 sqm (60m × 40m) |
| Building Coverage | 1,600 sqm |
| Number of Floors | 2 floors (Ground + First Floor) |
| Total Built-Up Area | Approx. 3,200 sqm |
| Shop Units (Ground Floor) | 20 units (average 25 sqm per shop) |
| Shop Units (First Floor) | 16 units (average 30 sqm per shop) |
| Supermarket Section | 1 large unit (200 sqm) |
| Food Court / Restaurants | 4 units (each approx. 45 sqm) |
| Office/Admin Block | 3 rooms (Manager’s Office – 20 sqm, Accounts – 15 sqm, Staff Room – 25 sqm) |
| Public Restrooms | 2 per floor (Male/Female) |
| Corridor Width | 2.4m average circulation width |
| Parking Capacity | 35 cars minimum |
| Structural Frame | Reinforced concrete columns and beams |
| Roof Type | Flat reinforced slab with parapet finish |
| Electrical & Mechanical Provisions | Concealed wiring, provision for AC ducting, CCTV, and fire safety system |
| Download Format | PDF (Architectural Drawings, Floor Plans, Elevations, Sections, Site Plan) |
Why Choose This Plan:
All our architectural plans are created by certified architects and engineers, reviewed for accuracy, durability, and compliance with Nigerian and international building standards.
We ensure your shopping mall project is ready for immediate implementation, saving you time, design costs, and unnecessary delays.
















Reviews
There are no reviews yet.