
The 2 Units of Semi-Detached 5 Bedroom Duplex with 1 BQ and Swimming Pool is a premium architectural masterpiece tailored for homeowners and developers who desire sophistication, comfort, and modern living.
Each unit is designed to balance luxury and practicality, making it ideal for families or rental development projects. The plan integrates open spaces, natural ventilation, and elegant finishing touches that reflect contemporary architecture at its best.
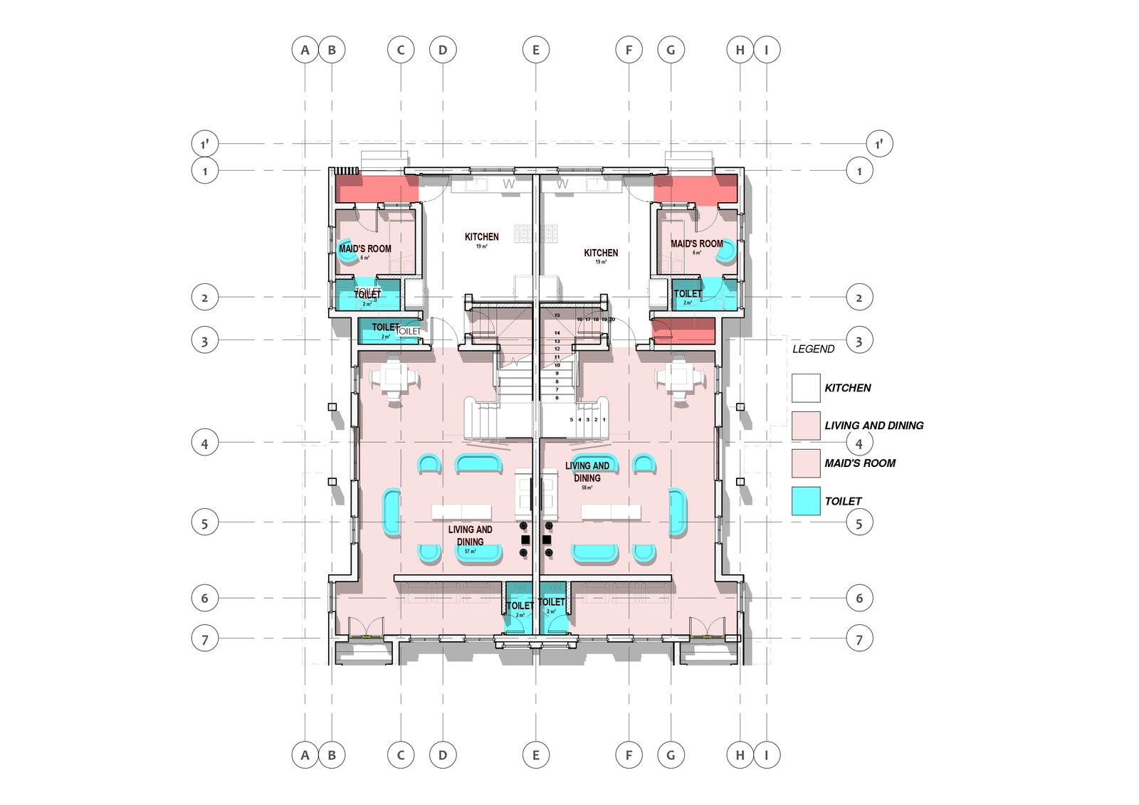
The ground floor features an inviting ante-room, a spacious living room, an en-suite guest bedroom, a dining area adjoining a fully equipped modern kitchen, and a store for added convenience. Upstairs, all rooms are en-suite, with the master bedroom offering a walk-in closet, a private lounge, and an open balcony with pool view access.
Outside, the design accommodates ample parking, a relaxation area, and a swimming pool perfectly positioned for privacy. The BQ (Boys’ Quarters) provides a comfortable, self-contained space for domestic staff or rental use.
This design is suitable for standard plots measuring approximately 900–1000 sqm, with aesthetic facades and functional layouts that enhance property value.
Design Highlights:
-
Contemporary façade with open terrace and large windows for ventilation.
-
Dual access points ensure privacy between both units.
-
Spacious master suite with a lounge and a balcony overlooking the pool.
-
Optional shared or individual swimming pool layouts.
-
Integrated servant quarters for convenience.
-
Well-optimized land use—ideal for high-value residential areas.
Technical Specifications
| Feature | Details |
|---|
| Building Type | 2 Units of Semi-Detached Duplex |
| Number of Bedrooms (per unit) | 5 (All en-suite) |
| Boys’ Quarters (BQ) | 1 Room Self-contained per unit |
| Total Units | 2 |
| Floors | 2 Floors (Ground + First Floor) |
| Approximate Total Land Area | 950 sqm (475 sqm per unit) |
| Building Footprint | ~210 sqm per unit |
| Living Rooms | 2 (Main Living Room & Family Lounge) |
| Dining Area | 1 (Adjoining kitchen) |
| Kitchen | 1 Fully Fitted Modern Kitchen with Store |
| Guest Room | 1 En-suite (Ground Floor) |
| Master Bedroom | En-suite with Walk-in Closet, Lounge & Balcony |
| Other Bedrooms | 3 En-suite Bedrooms (First Floor) |
| Bathrooms / Toilets | 6 (Including Visitors’ Toilet) |
| Swimming Pool | 1 Private Pool (Optional Shared/Separated per unit) |
| BQ (Boys’ Quarters) | 1 Bedroom with Kitchenette & Bathroom |
| Parking Capacity | 3–4 Cars per Unit |
| Roof Type | Contemporary Flat Roof or Steep Pitched Roof (Optional) |
| Exterior Finish | Sandcrete render with modern stone cladding |
| Recommended Plot Size | Minimum of 100 ft x 100 ft (30m x 30m) |
Why Choose This Plan:
-
Professionally designed for high rental or resale value.
-
Combines affordability, durability, and aesthetic appeal.
-
Ready-to-build architectural plan — downloadable immediately after purchase.
-
Option for construction supervision and modification by our in-house experts at additional cost.


















Reviews
There are no reviews yet.