
The 5 Bedroom Duplex with 2 BQ is a premium architectural design crafted for homeowners and developers seeking elegance and practicality in one package. This contemporary duplex features spacious bedrooms, well-ventilated living areas, and functional spaces that accommodate both family and guests comfortably.
Its modern façade and balanced structure make it suitable for medium to large plots, blending aesthetic appeal with structural efficiency. Each space within the house has been meticulously designed — from the double-volume living room that welcomes natural light to the en-suite bedrooms that guarantee privacy and relaxation.
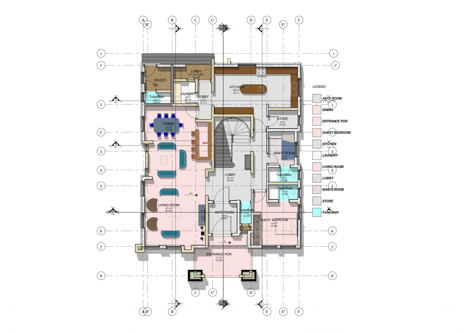
The inclusion of two Boys’ Quarters (BQ) offers additional accommodation for staff or guests, while the spacious kitchen, private balconies, and ample parking area complete this perfect home package.
Whether you’re building your dream home or investing in a real estate project, this plan delivers unmatched value with its flexibility, durability, and modern architectural detailing.
Key Features:
✅ Contemporary duplex design with elegant façade
✅ All bedrooms en-suite with wardrobes
✅ Two self-contained Boys’ Quarters (BQ)
✅ Spacious living and dining areas
✅ Master suite with private balcony and walk-in closet
✅ Family lounge on the upper floor
✅ Modern kitchen with pantry and external access
✅ Guest toilet on the ground floor
✅ Front and back terraces
✅ Ample car parking and landscaped setback
✅ Cross ventilation and natural lighting in all rooms
✅ Scalable design — can be modified for smaller or larger plots
Technical Specifications
| Specification | Details |
|---|---|
| Total Land Area | 600 sqm (60ft x 100ft) |
| Building Footprint | Approx. 300 sqm |
| Number of Floors | 2 (Ground Floor + First Floor) |
| Number of Bedrooms | 5 En-suite Bedrooms |
| Boys’ Quarters (BQ) | 2 Self-contained Units |
| Living Rooms | 2 (Main Lounge & Family Lounge) |
| Dining Area | 1 (Adjacent to Kitchen) |
| Kitchen | Fully fitted with pantry & back exit |
| Guest Toilet | 1 (Ground Floor) |
| Master Bedroom | Large en-suite with walk-in closet & private balcony |
| Staircase Type | Reinforced concrete (U-shape or L-shape) |
| Roof Type | Pitched roof with concrete parapet |
| Parking Capacity | 3 – 4 Cars |
| Minimum Plot Requirement | 60ft × 100ft (18m × 30m) |
| Construction Material | Reinforced concrete, sandcrete blocks, aluminum roofing sheets |
Why Choose This Plan:
-
Professionally designed for high rental or resale value.
-
Combines affordability, durability, and aesthetic appeal.
-
Ready-to-build architectural plan — downloadable immediately after purchase.
-
Option for construction supervision and modification by our in-house experts at additional cost.













Reviews
There are no reviews yet.